in the HEART OF BALTIMORE’S STATION NORTH ARTS & Entertainment DISTRICT
THE VISION
A widely recognized art-centric experience made up of industries that drive culture, creativity, and economics, you will find a dedicated group of diverse partners, who aspire to support and participate in the arts & entertainment district by creating a nourishing environment for emerging companies, multi-disciplinary artists, and entrepreneurs. In addition to restoring space for new growth, the redevelopment of North Ave Market is envisioned to have a positive catalytic effect on existing establishments in Station North and the surrounding neighborhoods.
Together, we are crafting a narrative of success, innovation, and inclusivity — developing a destiny for North Ave Market that paves the way for the creative class. This is not just a vision; it is an invitation to be part of a movement that will shape the future, restore industries, and influence generations to come. North Ave Market should not be seen as a destination; it is a JOURNEY.
As we are in the early stages of developing plans and goals for North Ave Market, we are engaging with groups, individuals, and businesses that can contribute to and benefit from this vision for the redevelopment of North Avenue Market. We are committed to deep listening and continuously adapting the vision to embrace input from stakeholders.
the plan
The building suffers from decades of deferred maintenance and significant portions of it have not been occupied for 30+ years. As a result, it needs to be fully renovated to active the entire 96,000 square feet and honor the original Spanish Revival architecture.
Following a substantial rehabilitation done in accordance with historic preservation guidelines, North Avenue Market will house entertainment venues, bar/restaurants, local retailers, artist and maker workspaces, nonprofit arts programming space, and a large-scale exhibition space. The design allows for flexible spaces at a variety of price points and sizes so businesses can grow, adapt and succeed within the building.
Prior to the full redevelopment, there’s a rich array of temporary programming and short-term tenants including a dance hall, cocktail bar, vintage market, boutique for a designer brand, and youth arts programming.
The building is 96,000 square feet with over three levels (a basement, ground floor, and partial 2nd floor).
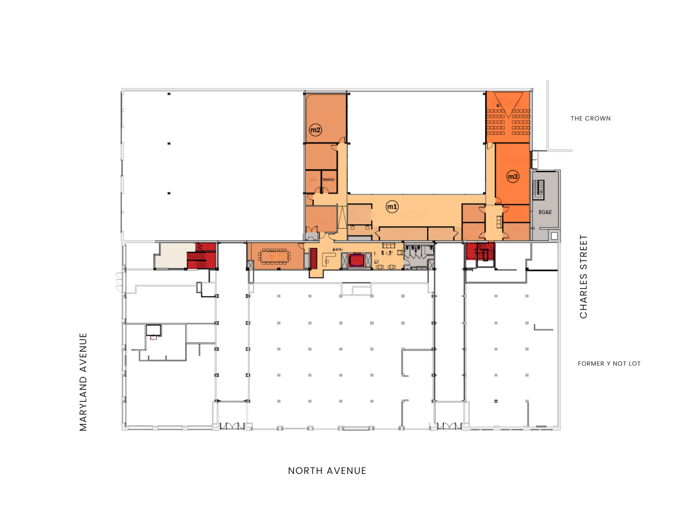
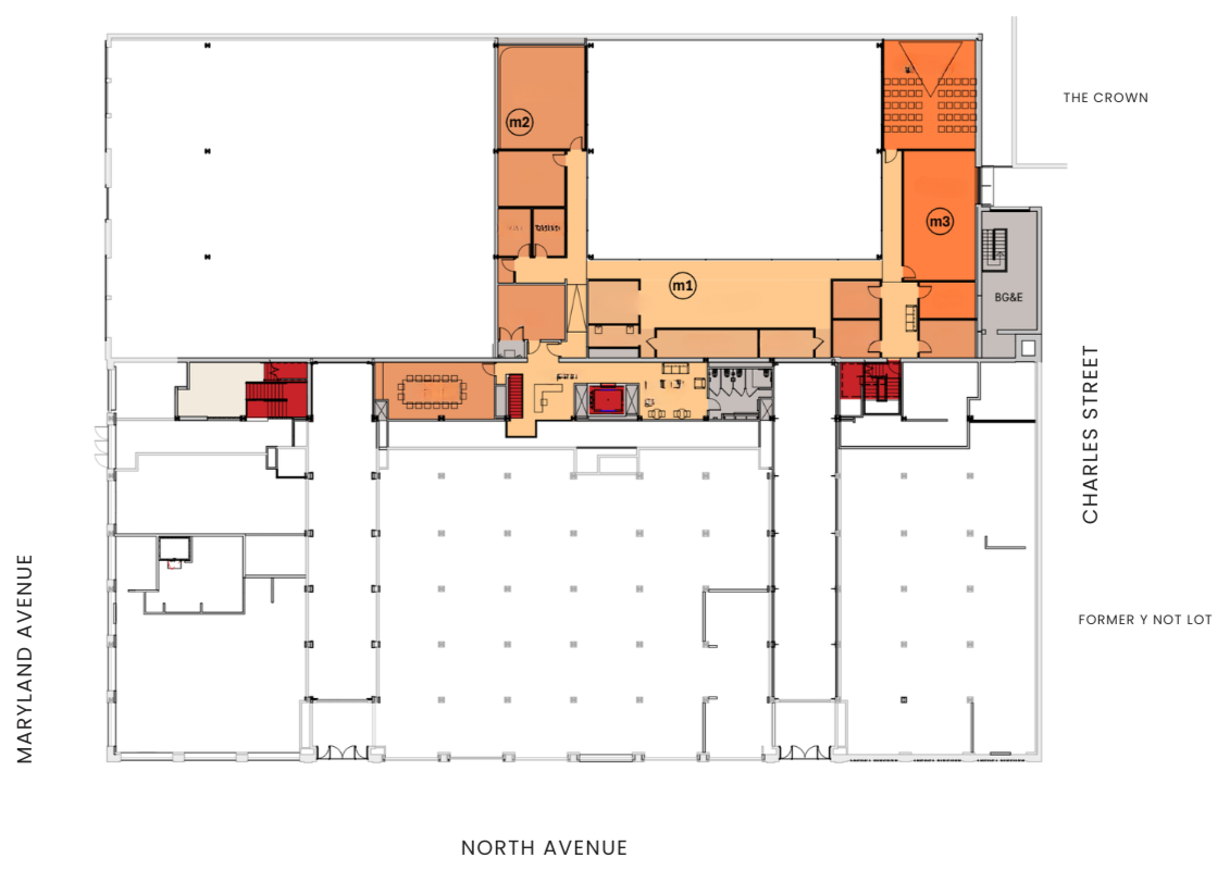
ground floor
North Avenue will have two entrances at the West and East Arcade and a third entrance at Maryland Avenue to enter the central arcade. A fourth entrance is in the works on the east side of the building along Charles Street between the former Y Not Lot and The Crown.
Area (SF)
Net: 28,926 / Gross: 38,539
mezannine
Combines the historic and a newly constructed mezzanine overlooking Open Structure that lays out perfectly for private offices/studios.
Area (SF)
Net: 8,264 / Gross: 8,634
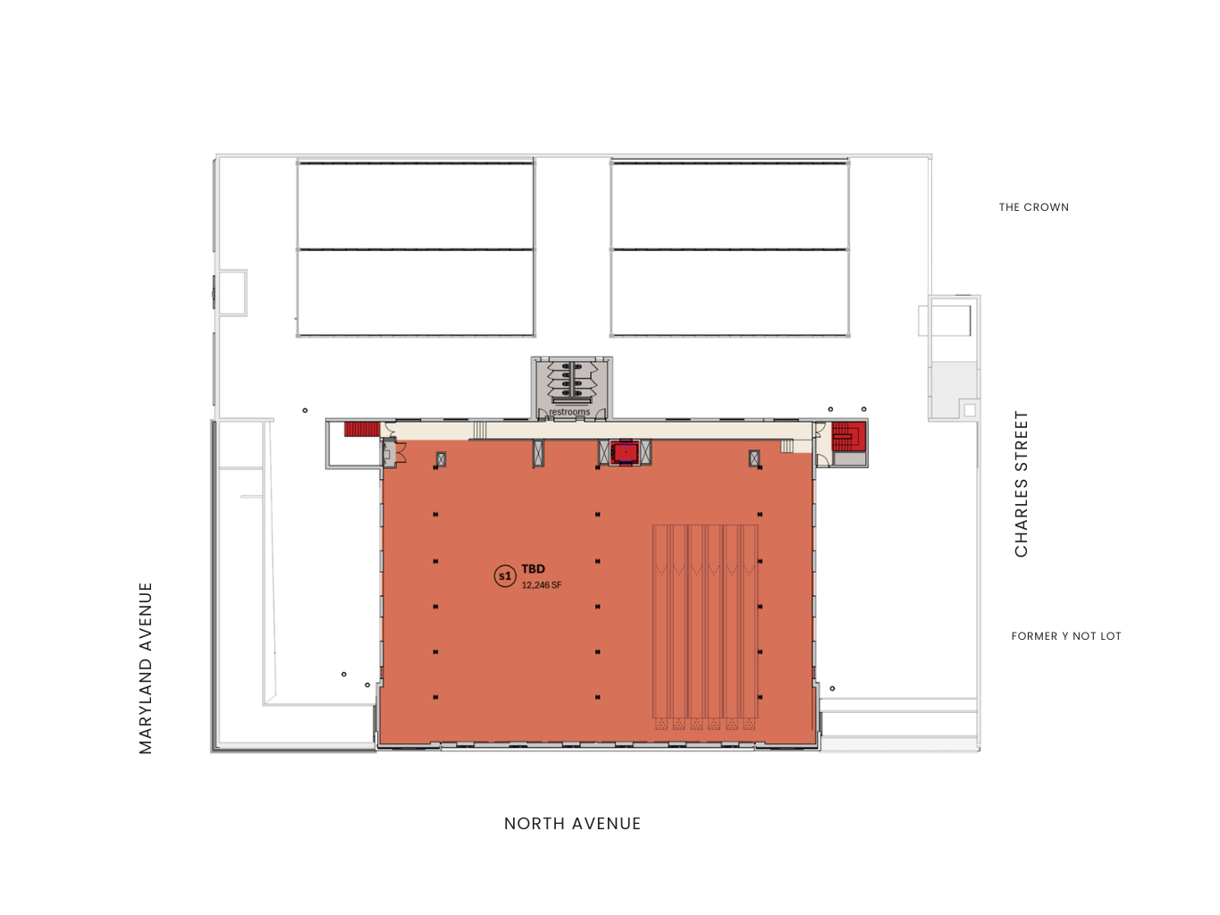
second floor
Home to a former duckpin bowling alley, this space is part of the Phase 2 development plan.
Area (SF)
Net: 13,958 / Gross: 14,731
LOWER LEVEL
Envisioned as a space for a variety of small businesses, studio spaces and other annex locations for ground floor tenants as they have the need to expand. The lower level is part of the Phase 2 development.
Area (SF)
Net: 28,926 / Gross: 38,539
history
North Avenue Market was built in 1928 as Baltimore City’s first privately-owned market house. When it opened, the market contained twelve retail stores, a twenty-two-lane duckpin bowling alley, and over 200 grocery vendors. The market’s commercial viability was impacted by demographic changes following WWII, including the exodus of Baltimore residents to the suburbs. In 1968, a fire substantially damaged the interior of the building. Shortly after, the northern portion of the building was razed to accommodate the construction of J Van Story apartments.
Since the early 1970s, portions of the building have been occupied by a variety of beloved businesses including a print studio, arcade bar, theater, and dance club.
LOCATION
North Avenue Market has a prominent location at the geographic center of Baltimore City and within the Charles North, Station North Arts and Entertainment District.
the crossroads of baltimore
-

Station north arts district
Established in 2002, Station North was the first area in Baltimore to receive the State designation as an arts and entertainment district, and it is home to a diverse collection of artist live-work spaces, galleries, studios, bars, restaurants, and theatres.
-

in good company: cultural institutions
Less than a block away, you’ll find arts institutions such as the Parkway Theatre, The Charles Theater, Motor House, and the Maryland Institute College of Art (MICA) and The Impact Hub.
-

Charles Street: retail, shopping & more
Home to an assortment of small independent businesses, Charles Street is offers a wide range of nightlight, galleries, restaurants and creative arts installations and murals.
-

transportation options abound
Two and a half blocks from Baltimore’s Penn Station, which has MARC commuter rail to DC, the MTA light rail, and Amtrak service. Several bus stops are right outside the North Avenue Market arcade entrances.
community impact & FAQ
North Avenue Market occupies nearly an entire city block at a highly visible location in the heart of Central Baltimore.
-
North Avenue Market’s redevelopment is a key opportunity to help revitalize the Station North Arts District. The area experienced significant challenges during COVID, which impacted many commercial businesses and left several properties vacant or underutilized.
By bringing North Avenue Market back to life, the project can help stimulate reinvestment in surrounding properties and support the long-term health of existing businesses, arts institutions, and cultural organizations in the district.
-
Station North is one of Baltimore’s most vibrant and creative neighborhoods. It is home to major cultural institutions, arts organizations, and a diverse collection of small businesses.
The district’s unique mix of creativity, entrepreneurship, and cultural energy makes it an ideal location for a project that centers arts, culture, and small business development.
-
The project aims to create a thriving hub for creative entrepreneurs in Baltimore. This includes artists, makers, food and beverage operators, and other small business owners.
The redevelopment will support this ecosystem by providing:
Affordable retail spaces for small businesses
Work and rehearsal spaces for artists and performers
A large exhibition hall designed to attract national talent
Bars, restaurants, and venues that help generate foot traffic for emerging businesses
A strong artistic identity and brand that places creativity at the center of the space
-
The market will be designed to foster a strong creative ecosystem where artists and entrepreneurs can build sustainable careers.
Planned features include:
Exhibition and performance spaces
Retail spaces that support collaborations between emerging creators and established brands
Opportunities for artists, makers, and cultural organizations to showcase their work
Programming that connects creativity, entrepreneurship, and community engagement
-
Yes. Workforce development and career pathways are an important part of the project.
Anchored by Baltimore Youth Arts, North Avenue Market will include organizations that use arts and culture to support career readiness and employment opportunities for young people and emerging workers.
-
The project team is actively meeting with community stakeholders to better understand the needs of the neighborhood and the broader Station North district.
These conversations are helping identify gaps in the district and shape how North Avenue Market can best support the local creative economy.
-
The project will use a mix of public and private financing tools, including:
Federal Historic Tax Credits
Maryland Historic Revitalization Tax Credits
Conventional debt and equity financing
This financing approach allows the project to offer flexible and affordable lease terms to mission-aligned small businesses and nonprofit organizations.
The total project cost is estimated at $32 million.
Financing Plan
The redevelopment of North Avenue Market will be funded by creative public- private financing such as Federal Historic Tax Credits and MD Historic Revitalization Tax Credits in addition to conventional debt and equity. The goal is to use creative financing to provide favorable and flexible lease terms to mission aligned small businesses and nonprofit organizations. The total project cost is projected to be $32 million.
Timeline
North Avenue Market was purchased in March 2024 from longtime owners Mike Shecter and Carolyn Frankil. It will take time to assemble the financing, tenants, and broad-based support required for a community development project of this scale.
If all goes well, construction will start in late 2025 and finished space will be delivered in early 2027.
Second Level
The second level was once home to a duckpin bowling alley
open structure
Multi-purpose Hall + Inspiration:
Cultural Facility
OpenStructure is a curatorial incubator and exhibition space, designed to support both emerging and professional curators. Through intentional partnerships with respected institutions and cultural organizations, Open Structure offers access to exhibition space, promotional support, and mentorship opportunities—creating a pipeline for visibility, growth, and economic opportunity. At its center is a flexible exhibition platform for rotating, curator-led programming.
Surrounding this space are a series of mezzanine-level and adjacent studios operated by mission-aligned partners, including an arts college program and a nonprofit serving youth through creative education. This space will host dozens of community events annually at no cost and attract an estimated 14,000+ visitors annually.
WHY THIS MATTERS
North Avenue Market is more than the restoration of a historic building—it is an investment in Baltimore’s creative future. The goal is to create a vibrant hub where artists, entrepreneurs, and the public come together to share ideas, collaborate, and build new opportunities.
Through artist studios, exhibition spaces, performances, and gathering places like cafés and bars, the market will encourage the kinds of chance encounters that spark creativity and innovation. By connecting artists with audiences and consumers, the project will help creative work thrive as both culture and small business.
Station North has spent years building a foundation of artist housing, workspaces, and cultural institutions. North Avenue Market will strengthen that ecosystem, creating new spaces for experimentation, collaboration, and public engagement with the arts.
Just as important, the project will honor the spirit of the neighborhood. Station North is one of Baltimore’s most diverse communities, and the tenants, programming, and culture of the market will reflect and celebrate that diversity while welcoming the communities that have long called the district home.
For many, North Avenue Market already holds decades of memories—from dance parties and art shows to markets and readings. Revitalizing this building means honoring that legacy while creating something Baltimore still needs: a shared home for its creative community.
When fully activated, North Avenue Market will help unlock the full potential of Station North and serve as a catalyst for the district’s next chapter.